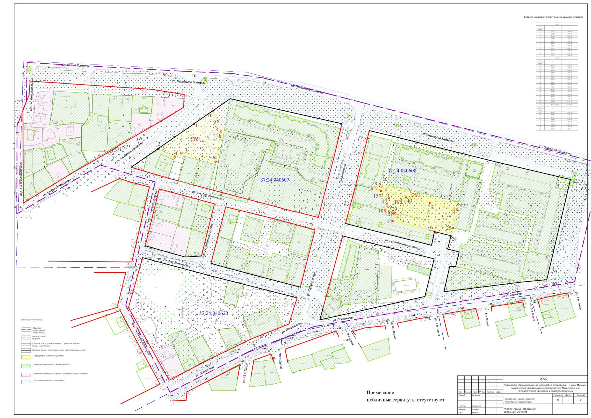
Проект документации по планировке территории города Иванова, ограниченной улицами Парижской Коммуны, Поселковой, 2-й Энергетической, переулком 1-м Высоковольтным
Флаг Здание Официальный сайт администрации города Иванова (архив) Официальный сайт администрации города Иванова (новая версия)
Версия для слабовидящих
Контактная информация ПРОТИВОДЕЙСТВИЕ КОРРУПЦИИ ОТКРЫТЫЕ ДАННЫЕ Защита от чрезвычайных ситуаций ОПОВЕЩЕНИЕ НАСЕЛЕНИЯ Действия населения при подтоплении территории Действия населения при выбросе в атмосферу химически опасных веществ Действия населения при неблагоприятных погодных явлениях Телефоны экстренных служб "Горячая линия" по вопросам нарушения трудового законодательства Документы по организованной перевозке групп детей автобусами Отловленные животные 2022 Отловленные животные 2023
Жалобы на всё
Не убран снег, яма на дороге, не горит фонарь? Столкнулись с проблемой — сообщите о ней!

Документация по планировке территории города Иванова, ограниченной улицами Парижской Коммуны, Поселковой, 2-й Энергетической, переулком 1-м Высоковольтным

Постановление Администрации города Иванова об утверждении документации № 1391 от 04.12.2020

Проект планировки территории

1. Утверждаемая часть:

     
  

2. Обосновывающая часть:

  
  
  
  
  

Проект межевания территории

1. Утверждаемая часть:

  
  

2. Обосновывающая часть:

  
  

Назад

Администрация г. Иваново

Яндекс.Метрика